openclose
Öffnungszeiten

Montag bis Freitag
08:00–12:00 & 13:00–17:00 Uhr

Außerhalb der Öffnungszeiten mit Terminvereinbarung

info@betonform.it
+39 0474 504 180

Milano

poeller-milano.jpg
Betonform Poller Milano
aa8f943f4c.gif
Betonform Poller Milano

Lieferung von Betonfertigteilen von Betonform mit der Funktion eines Pollers in quadratischer Form und mit den Maßen 45 x 45 x 55 cm. Die Elemente sind aus massivem Beton gefertigt und haben eine Oberfläche in Waschbeton oder gesandelt.

Die Betonwerte: mittlere Betondruckfestigkeit 40 N/mm² (500 kg/cm²).

Wasserundurchlässigkeit: maximale Wassereindringtiefe an der Oberfläche 17 mm nach DIN Norm 1048 (Frostsicherheit).

Die Sockel sind mit einem Kupferblech verkleidet

Maße und Eigenschaften:
Maße Hoehe Gewicht
cm cm kg/St.
45 x 45 55 250 ca.

Torino

DSC00159.jpg
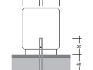
Betonfertigteilen Betonform Torino
99e0ee8226.gif
Betonfertigteilen Betonform Torino Skizze
795e9e827b.gif
Betonfertigteilen Betonform Torino Skizze

Lieferung von Betonfertigteilen von Betonform mit der Funktion eines Pollers in runder Form und mit den Maßen 45 x 55 cm. Die Elemente sind aus massivem Beton gefertigt und haben eine Oberfläche in Waschbeton oder gesandelt.

Die Betonwerte: mittlere Betondruckfestigkeit 40 N/mm² (500 kg/cm²). Wasserundurchlässigkeit: maximale Wassereindringtiefe an der Oberfläche 17 mm nach DIN Norm 1048 (Frostsicherheit). Die Sockel sind mit einem Kupferblech verkleidet.

Maße und Eigenschaften
Durchmesser Höhe Gewicht
cm cm kg / Stück
45 55 195 ca.

Parma

dissuasore-pola1.jpg
Poller Betonform Modell PARMA
b0130f9ded.gif
Poller Betonform Modell PARMA

Poller Betonform Modell PARMA von pyramidenförmigem Aufbau und in achteckiger Gestalt. Die Elemente sind aus massivem Beton gefertigt und haben eine Oberfläche in Waschbeton oder gesandelt.

Die Betonwerte: mittlere Betondruckfestigkeit 40 N/mm² (500 kg/cm²). Wasserundurchlässigkeit: maximale Wassereindringtiefe an der Oberfläche 17 mm nach DIN Norm 1048 (Frostsicherheit). Die Verankerung erfolgt mittels Einbetonieren in ein Betonfundament.

Maße und Eigenschaften
Seitenabstnd am Fuß Höhe Gewicht
cm cm kg / Stück
50 85 300 ca.

Parma II

Parma-II-poeller-bild.jpg
Poller Betonform Modell PARMA_2
Maße und Eigenschaften
Durchmesser Höhe Gewicht
cm cm kg / Stück
40 / 26 90 200 ca.

Venezia I

5e1480ec62.jpg
Poller Betonform Modell Venezia I
poeller-venezia.jpg
Poller Betonform Modell Venezia I
99e0ee8226.gif
Poller Betonform Modell Venezia I

Lieferung von Betonfertigteilen mit der Funktion eines Wehrsteines in runder Form und mit den Maßen 30 x 100 cm. Die Elemente sind aus massivem Beton gefertigt und haben eine Oberfläche in Waschbeton oder gesandelter Beton.

Die Betonwerte: mittlere Betondruckfestigkeit 40 N/mm² (500 kg/cm²). Wasserundurchlässigkeit: maximale Wassereindringtiefe an der Oberfläche 17 mm nach DIN Norm 1048 (Frostsicherheit). Die Verankerung erfolgt mittels Einbetonieren in ein Betonfundament. Um einen festen Verbund zwischen Stein und Beton zu ermöglichen, sind vier Betonstahlstäbe am Boden der Wehrsteine eingegossen.

Maße und Eigenschaften
Durchmesser Höhe Gewicht
cm cm kg / Stück
30 100 160 ca.

Venezia II

Venezia-II-poeller-bild.jpg
Poller Betonform Modell Venezia II
Maße und Eigenschaften
Durchmesser Höhe Gewicht
cm cm kg / Stück
38 80 115 ca.